前言:現代簡約風格主張以簡約為裝飾理念,代表一種簡潔,回歸純凈內心的生活方式。現代簡約風格營造的是簡單大氣的氛圍,將空間利用最大化,融入功能,簡約而不簡單。
房屋信息
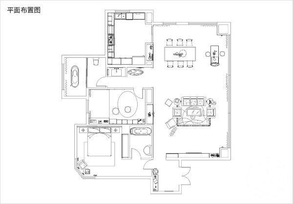
戶型:2室2廳1廚2衛
面積:套內面積98.07m²
風格:現代簡約
設計師分享戶型設計

Vestibule 入戶

玄關,家的第一道風景。設計風格簡約但富有現代感,集收納展示為一體,充分提高空間利用率。
Living room 客廳



在客廳設計上,強調簡潔與實用,舍棄繁雜的裝飾元素,讓整體空間變得更大,從而營造出舒適的家居氛圍。
Kitchen 廚房


廚房最能體現家的溫暖,所以無論是在用色,還是布局上,每一個細節,都精心打造。充分體現出廚房獨有的溫馨與優雅。
Restaurant 餐廳



餐廳與客廳一體讓空間流動性更強,一柜到頂的酒柜搭配玻璃門,讓人眼前一亮,增添高雅調性。
Bedroom 臥室

床品、吊燈、地毯、衣柜的完美搭配,詮釋著臥室空間的隱逸雅致,如同沐浴在整片星空之下,讓睡眠變得更加高級。
Functional room 多功能房



榻榻米+書桌柜設計,充分利用了有限空間,設計成集休閑、閱讀、休息等集一體的多功能家居空間,愛上生活愛上家。
Restroom 衛生間

白色浴室柜設計,配上淺色的瓷磚,讓整體空間給人一種柔和明亮潔凈的感覺。

定制生活,設計為先。在這個追求生活品質的時代,易高家居從未停止創新求變的步伐。未來,易高家居將一如既往為消費者打造更有品質的家居產品。